















4 Bedrooms 3 Bathrooms 1 Reception
Townhouse - Freehold
17 Photos
Edgware
TBC Deposit
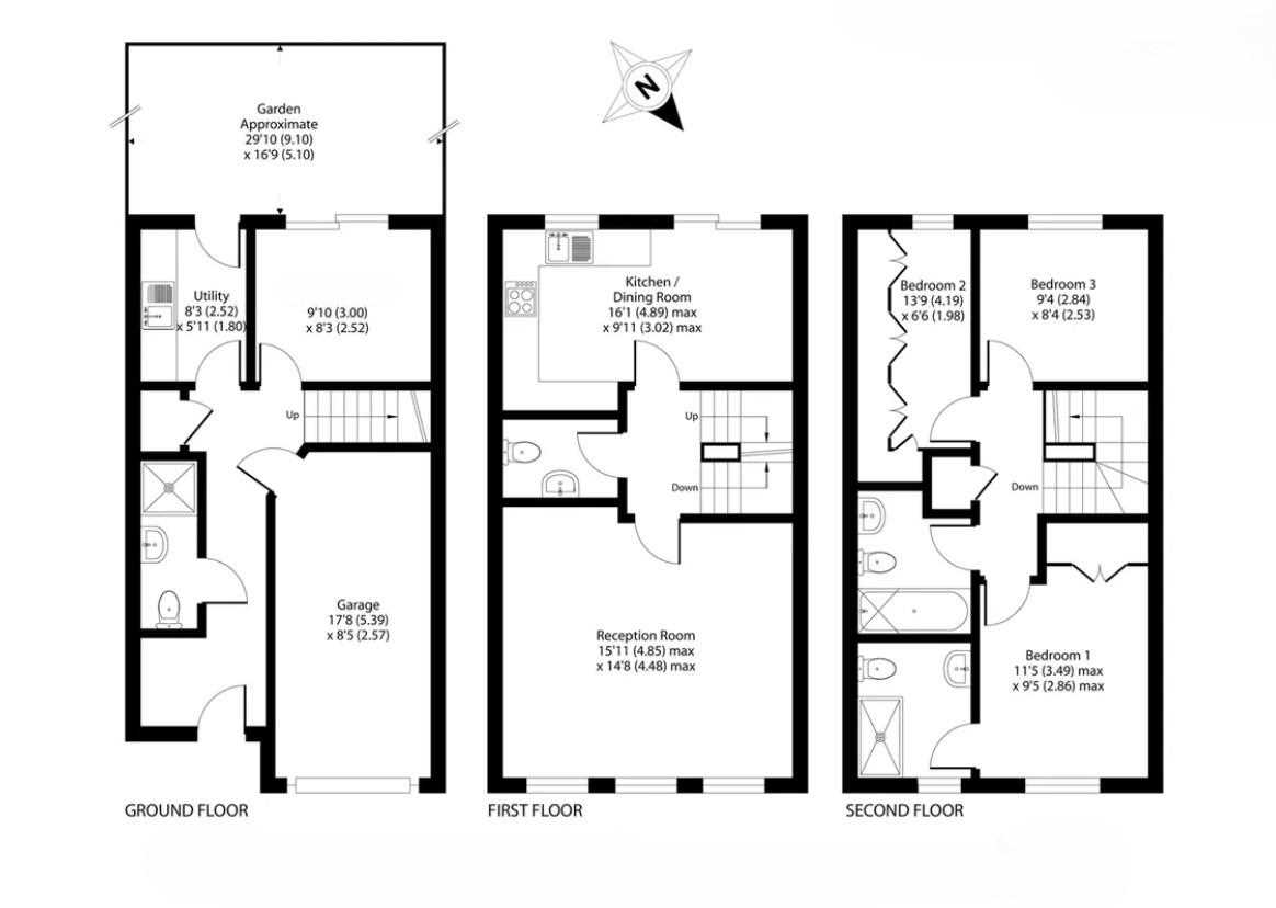
The Property Shop is delighted to present this spacious and well-maintained 4-bedroom townhouse, set on a quiet residential road near Edgware Community Hospital. The ground floor features a large garage, utility room and family bathroom. On the first floor, you’ll find a generous integrated kitchen, bright reception room and guest WC. The second floor offers a master bedroom with en-suite, two further good-sized bedrooms and an additional family bathroom. Further benefits include a private driveway, rear garden and close proximity to local shops, amenities and bus routes. Call now to arrange a viewing.
Reference: TPR1001894
Disclaimer
These particulars are intended to give a fair description of the property but their accuracy cannot be guaranteed, and they do not constitute an offer of contract. Intending purchasers must rely on their own inspection of the property. None of the above appliances/services have been tested by ourselves. We recommend purchasers arrange for a qualified person to check all appliances/services before legal commitment.
Contact The Property Shop for more details
121 High Street, Edgware, HA8 7DB | 0208 951 1888 | info@thepropertyshopltd.co.uk