

















5 Bedrooms 2 Bathrooms 2 Reception
Semi - Freehold
19 Photos
Edgware
TBC Deposit
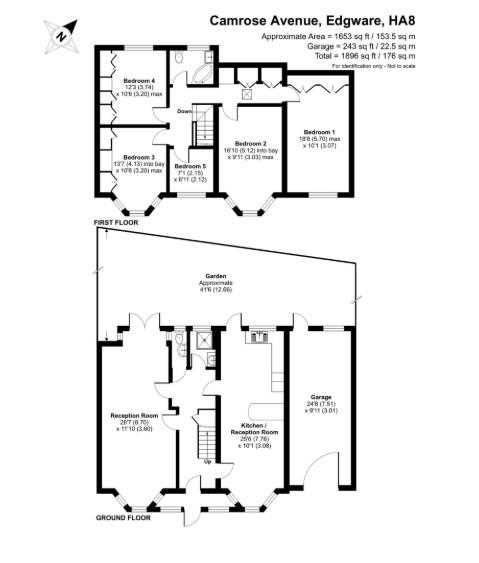
The Property Shop is pleased to offer this generously sized five-bedroom semi-detached family home on Camrose Avenue, Edgware, approximately 1,900 sq ft. The ground floor comprises a large reception room, kitchen with dining area, a bathroom, and a separate guest WC. The first floor features two master bedrooms, two double bedrooms, one single bedroom, and a family bathroom. Additional benefits include ample storage throughout, a water softener, driveway for multiple cars, a large garage, and a rear garden. Ideally located just 0.8 miles from Queensbury Station (Jubilee Line), the property also offers easy access to the Northern Line, outstanding local schools including Krishna Avanti Primary School, bus routes, shops, amenities, and nearby parks. An excellent choice for families seeking space, comfort, and convenience. Call now to arrange a viewing.
Reference: TPR1001915
Disclaimer
These particulars are intended to give a fair description of the property but their accuracy cannot be guaranteed, and they do not constitute an offer of contract. Intending purchasers must rely on their own inspection of the property. None of the above appliances/services have been tested by ourselves. We recommend purchasers arrange for a qualified person to check all appliances/services before legal commitment.
Contact The Property Shop for more details
121 High Street, Edgware, HA8 7DB | 0208 951 1888 | info@thepropertyshopltd.co.uk